DIMORA VELARDO, Ragusa Ibla, Sicily
DIMORA VELARDO, Ragusa Ibla, SicilyInformazioni di base
Descrizione
-
Descrizione:
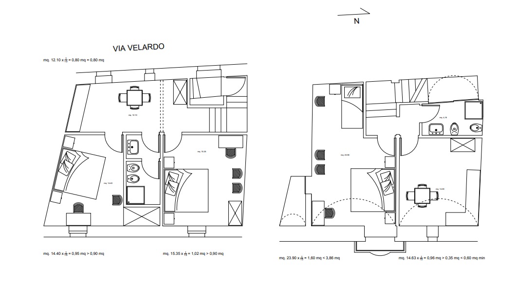
Dimora Velardo è una rara opportunità nel cuore autentico di Ragusa Ibla, dove il tempo sembra essersi fermato. Questa affascinante residenza storica, completamente da ristrutturare, si sviluppa su due livelli per circa 99 mq e gode di una vista mozzafiato sull’intero centro barocco e sulla vallata, regalando scorci unici in ogni momento della giornata.
Al piano superiore si respira un’atmosfera d’altri tempi: qui si trova un’antica stanza con un grande forno in pietra ancora funzionante, preziosa testimonianza delle abitudini di un’epoca passata. La zona è completata da due camere e un bagno. Al piano inferiore si aprono tre ambienti con soffitti a volta e un balcone panoramico che domina la valle e i tetti storici di Ibla.
All’interno sono ancora presenti elementi originali di grande valore, come le volte antiche e resti di pavimentazione del Seicento, che, se recuperati, possono trasformare l’immobile in un vero gioiello architettonico.
È già stata elaborata un’ipotesi progettuale che prevede la realizzazione di due suite di charme, ideali per un uso residenziale esclusivo o per un progetto turistico di pregio. La posizione riservata ma panoramica, unita al processo di recupero in atto nella storica Via Velardo, rende questa proprietà un investimento intelligente per chi desidera unire bellezza, cultura e potenzialità economica.
In un mercato in cui le vere dimore storiche stanno scomparendo, Dimora Velardo rappresenta una delle ultime occasioni per recuperare un pezzo autentico di Ibla e trasformarlo in un luogo di vita, accoglienza o ispirazione.
